苏州三埃孚电子科技有限公司

苏州三埃孚电子科技有限公司

18013501776
0512-68312733

首页>>标准产品>>六分量传感器

六分量传感器

Z22MF30六分量传感器用于测量6个载荷,例如Fx, Fy, Fz, Mx, My, Mz, 正负信号方向。技术参数表中规定了传感器的测量范围,不得超过技术参数限定范围进行使用。

18013501776 在线咨询

产品详情

参数

采用紧凑的空间结构设计,中心设有 < 12mm 通孔以方便穿过线缆或气管,并配备定心法兰与 4 个 90° 定位销钉,支持单个使用或多个组合成六分量平台;其具备极高的灵活性,可根据需求选配 3 分量或 6 分量测量模式,且每个分量均采用独立激励与信号输出,有效降低了相互串扰,确保在静态和动态负载下的高精度测量;此外,产品支持定制不同的量程范围及实用轮毂测试方案,并可制作成高防护等级,具备优异的防水与耐温性能。


 

配件

机械安装配置包含8 个定位销钉及2 个定心空心垫片,电气连接方面标配1 至 2 根 5 米插头连接线缆,并提供线缆连接或适配不同数据采集器插头的选配服务。



注意事项

多分量传感器属于精密设备,其安装工作必须由经过专业培训的合格人员严格遵照既定的安装规范及安全要求进行;该传感器并不能作为安全组件。此外,为确保测量精度,在传感器的运输、存储、放置及安装全过程中,均必须小心操作并妥善维护。

1. 使用传感器时,必须遵守技术参数表中的信息,尤其不能超出相应规定的力方向的载荷和扭矩方向的载荷。

2. 传感器的激励电压不能超过技术参数表中更大激励电压值,否则会导致传感器损坏。

3. 未经明确许可,不得修改传感器,这可能对传感器造成破坏,导致安全系数降低。

4. 传感器在安装前,可以联系THREE-FORCE公司的技术人员。以便更好的使用传感器。

5. 不能在超过传感器温度限制的环境下使用。传感器不能在爆炸性环境中使用。

6. 传感器无需保养和维护。



安装前检查

1. 设备检查

传感器本体:请检查传感器的外观,插头,连接器线缆等是否齐全。

机械附件:检查定心垫片、定位销钉、螺栓尺寸是否合适。

2. 零点预检

如果已经有放大器或采集器,传感器在安装前,可以连接放大器或采集器,检查信号零点。

3. 连接件准备

附件的接触面必须满足以下条件才能火车更佳的测量结果:

(1)足够坚硬,一面在负载下变形,通常情况,连接件的厚度大约为传感器的高度的1/3厚。

(2)和传感器的接触面具有理想的平整度和刚度,无论知否有负载,公差<0.005mm。

(3)连接件由钢制作为佳,硬度至少≈40HRC,或者其它等强度合金钢。

(4)表面粗糙度≤Ra1.6,表面必须研磨,保证平面的平整度。

(5)传感器定心槽和定心垫片的配合尺寸为H8和g6。

(6)适配件可以将传传感器的定位孔做成腰型孔,目的时为了防止传感器在安装过程中卡住。

(7)每个面有4个销钉孔,至少需要安装1个销钉。


微信图片_20260120163034_273_5.png
典型装配






安装过程

1. 注意事项

传感器属于精密测量仪器,即使在测量模式下,撞击,跌落,也可能导致意外过载并造成性损坏。传感器在安装过程中要轻拿轻放,禁止任何形式的撞击或跌落。

2. 传感器的定心部件

安装时,需将传感器置于连接件中心,利用内部定心装置及定位销确保传感器与法兰上下对齐。连接螺栓应选用符合标准强度等级(8.8、10.9 或 12.9 级)的内六角螺栓,长度需适配客户自备的连接件。紧固时请使用扭矩扳手,并严格遵循对角线分步拧紧原则(步施加更大扭矩的 50%,第二步施加更大扭矩的 )。

微信图片_20260120085745_23_2.png
机械接口描述

3. 安装过程监测

在严谨的安装过程中,传感器在安装之间就连接放大器或者采集器,并在传感器安装过程中对传感器进行力的监测。防止在安装过程中出现过载现象。如果被测的力是交变载荷,请使用中等强度螺纹紧固胶锁紧螺栓,以排除由于螺栓松弛而造成的预应力损失。



安装后校验与方向确认

1. 零点校验

即使传感器安装正确,工厂进⾏的零点调整也可能导致灵敏度偏移⾼达约 0.5%。如果超过此值,我们建议您检查安装条件。如果拆卸传感器后残余零点漂移大于灵敏度的 1%。请将联系THREE-FORCE公司技术人员。

2. 检查力的方向

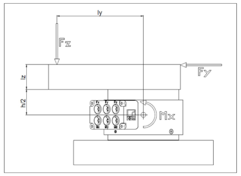
如果向⼒和扭矩沿箭头⽅向施加力或扭矩,则放大器或采集器输出正方向信号,反之,则输出负方向信号。传感器的中心点是在传感器的中心位置,尽管上下两个法兰端面施加载荷(力或力矩),测量都在原点产生。


微信图片_20260120163102_280_5.png


力和扭矩尽可能靠近传感器的端面进行施加,如果力或扭矩原理传感器的中心端面位置,则弯矩会大大增加,并可能影响起他分量的测量结果。如果在使用中施加力时不经过原点,则必须检查由此产生扭矩(力*力臂)。计算侧向⼒产生的弯矩时,必须考虑传感器来确定杠杆臂,因为原点位于传感器的中心,更大允许负载必须遵守技术参数表的规范,即使测量点不是在轴心位置。


微信图片_20260120163103_281_5.png


当传感器输出多个分量或记录多个分量时,可能会出现串扰。串扰的更大值是描述传感器的主要参数,三个⼒ Fx、Fy、Fz,以及⼒矩 Mx、My 和 Mz。如果施加单个方向载荷,例如只给轴向⼒Fz进行加载,其它测量方向也会输出⾮常⼩的信号。其它方向产生的这种不需要的信号称为串扰。




电气连接

连接电缆,特别是测量导线和控制电路,必须屏蔽;确保传感器和屏蔽层充分接地;确保环境无干扰,避免辐射噪声,同时放大器或采集器也需要进行接地处理。由于应变桥路信号时微弱的电压信号,请在布线时避开控制线路线缆或者干扰源。




引脚定义


微信图片_20260121141605_289_5.png
微信图片_20260121141614_290_5 (1).png


11.png


22.png

33.png


44.png
55.png66.png














相关标签:

相关服务 /service

上一页: 没有了 返回 下一页: 没有了
电话咨询 QQ咨询